top of page

SENG LING
MIXED USE APARTMENT
Year : 2021
​
Location : Jalan Ling Kai Cheng, Sibu, Sarawak
​
Client: N/A
​
​​Area : 1.977 ac.
​​
Stage : Pending Approval
​
Budget: N/A
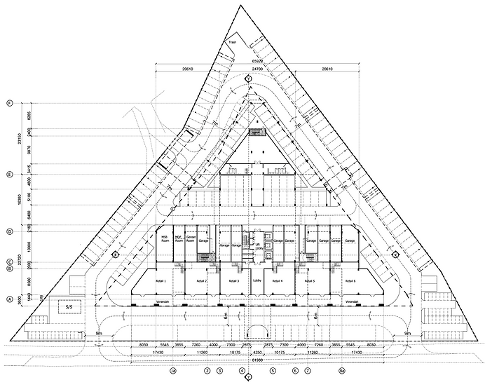
The proposed apartment is situated on a 1.977-acre site adjacent to Jalan Ling Kai Cheng.
​
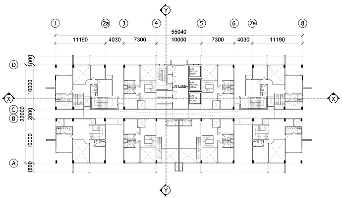
The department designates retail zone at ground and first floor, amenities zone at the second floor and the rest floors are residential zone.
​
Amenities zone provides club and fitness center, skygarden, swimming pool and children playground for the needs of community. The residential zones has 6 different types of unit for the buyers to choose.
​
To meet parking needs of the development, a total of 303 parking spaces have been provided at multistorey carpark.
bottom of page















