
HAMZAH CLUBHOUSE
Year : 2023
Location : Sibu, Sarawak
Client: N/A
Area : 5.96 ac.
Stage : Proposal
Budget: N/A
This clubhouse blends modern comfort with traditional Moorish architecture. Its white facade, featuring arches and intricate details, creates a stunning and inviting space.
The ground floor plan features a large openspace, likely serving as a common area hall. This space is flanked by several small rooms, possibly offices, meeting rooms, or storage areas.
The first floor is less open, with a number of smaller rooms arranged around a central corridor. There is also balcony or terrace area accessible from the first floor.









Ground Floor Plan
Roof Plan
Front Elevation
First Floor Plan
Roof Garden Plan
Rear Elevation
Left Elevation
Right Elevation
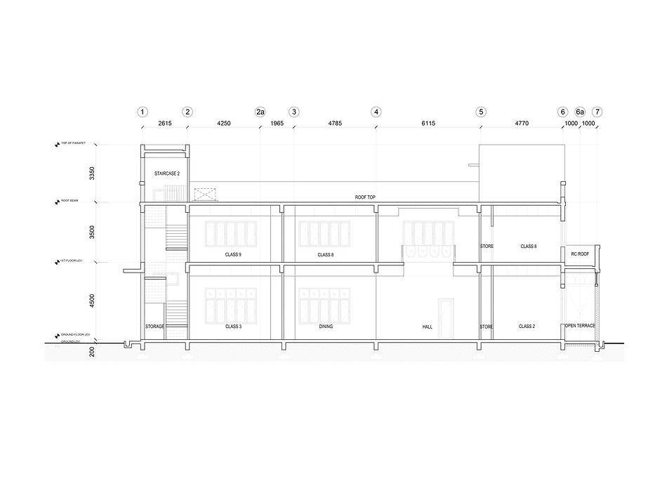
Section X-X


Section Y-Y
Section Z-Z
Right Elevation












