top of page
LEE'S RESIDENT
Year : 2020
​
Location : Lor Teku 47, Sibu, Sarawak
​
Client: Mr. Lee
​
​​Area : 0.2326 ac
​​
Stage : N/A
​
Budget: N/A
The building at Lor Teku 47 is a step-up semi-detached house designed for two families.
​
Each unit includes a car porch, family space, and kitchen on the ground floor.
​
The first floor has two bedrooms and a living room, while the second floor offers two more bedrooms and a master bedroom for each family.

Front Perspective View

Rear Perspective View










Ground Floor Plan
First Floor Plan
Second Floor Plan
Roof Plan
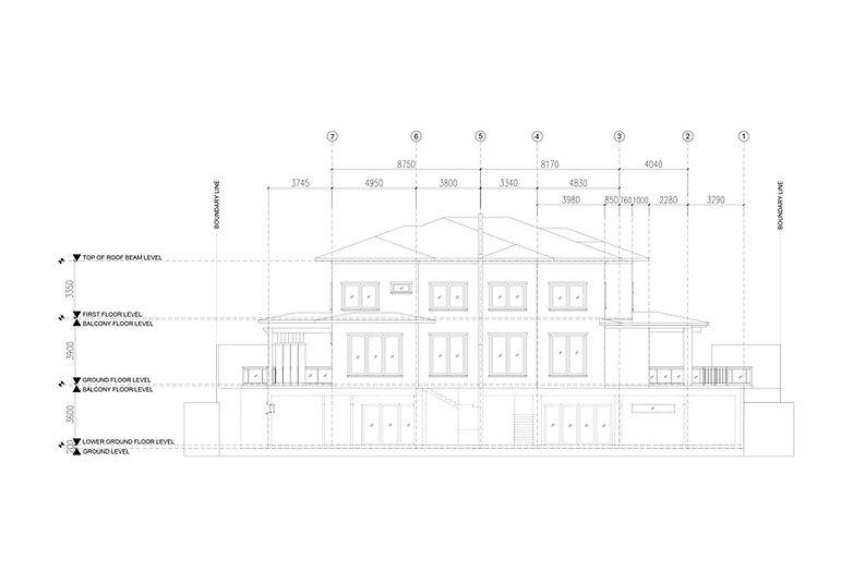
Front Elevation
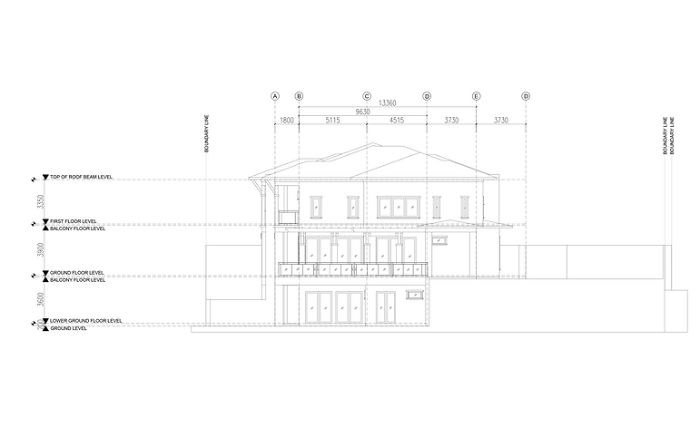
Left Elevation
Rear Elevation
Right Elevation
Section X-X
Section Y-Y
bottom of page




