top of page
KANOWIT BUNGALOW
Year : 2024
​
Location : Kanowit, Sarawak
​
Client: Mr. Lee
​
​​Area : 0.2326 ac
​​
Stage : N/A
​
Budget: N/A
The building at Lor Teku 47 is a step-up semi-detached house designed for two families.
​
Each unit includes a car porch, family space, and kitchen on the ground floor.
​
The first floor has two bedrooms and a living room, while the second floor offers two more bedrooms and a master bedroom for each family.


Front Perspective View
Rear Perspective View





Ground Floor Plan
First Floor Plan

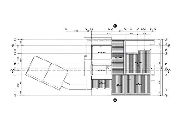
Second Floor Plan

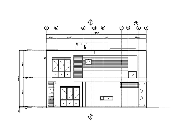
Front Elevation
Rear Elevation


Right Elevation
Left Elevation
Second Floor Plan
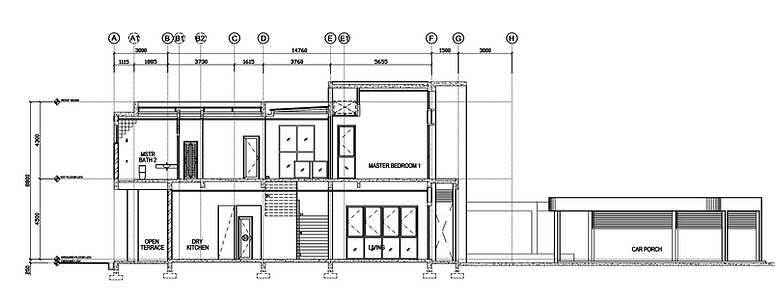
Section X-X
Section Y-Y
bottom of page






